Leave a Message

Thank you for your message. We will be in touch with you shortly.

Explore Our Properties

Property Description

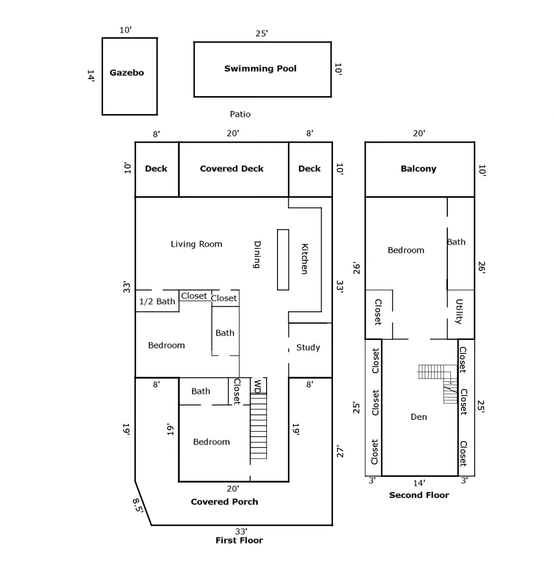
This stunning Gingerbread-style home seamlessly blends historic charm with modern luxury right in the heart of Old Town . A covered wraparound porch welcomes you into a bright, window-lined foyer, leading to an elegant living and dining area. Throughout, gorgeous pine floors and walls highlight the home's timeless character.The open gourmet kitchen, featuring high-end appliances, flows into the living room and out to the covered loggia through vanishing pocket doors, creating seamless indoor-outdoor living. With 3 or 4 bedrooms, the main floor offers two en-suite bedrooms + a custom office, while upstairs, a spacious sitting room with a breakfast bar leads to the primary suite, complete with dual closets and a private balcony overlooking the heated pool and lush backyard.Designed for relaxation and entertaining, the large covered back porch offers serene views of the tropical landscaping and tranquil pool waterfall. A gazebo-style outdoor living space expands your backyard retreat and could easily convert back into a guest cottage as it once was.A rolling front gate, off-street parking, and a charming front porch perfect for people-watching complete this exceptional property.

Overview

Property Status
Active Under Contract
Lot Size
5,025 Sq.Ft.
MLS ID
614012
Property Type
Residential
Year Built
1933

Features & Amenities

Total Area
2,438 Sq.Ft.
Neighborhood
Old Town
Water Frontage
None
View Description
No Waterview
Stories
2
Utilites
FKAA, Propane, Buyer to Verify, Municipal Sewer
Pool
In Ground, Concrete
Roof
Metal Roof
Parking
Off Street Parking
Heat Type
Central
Air Conditioning
Central Air
Other Interior Features
Wet Bar, Built-in Cabinets, Walk-in Closet(s), Other, Sliding Glass Doors
HOA Amenities
None
Security Features
Electric Gate
Other Exterior Features
Fencing, Sprinkler System, Lanai, Lighting, Gazebo
Sales Price
$3,599,000
Real Estate Tax
$23,137/yr
Zoning
HDR - High Density Residential

Downloads

1020 Southard Street

Schedule a Tour

We would love to help you see this beautiful home! As a full-service brokerage, we can help you tour. Please submit an offer, and answer questions about the buying process.

Enter a valid email

Thank you

for your interest in 1020 Southard Street, Key West, FL 33040

back to page

Property Description

This stunning Gingerbread-style home seamlessly blends historic charm with modern luxury right in the heart of Old Town . A covered wraparound porch welcomes you into a bright, window-lined foyer, leading to an elegant living and dining area. Throughout, gorgeous pine floors and walls highlight the home's timeless character.The open gourmet kitchen, featuring high-end appliances, flows into the living room and out to the covered loggia through vanishing pocket doors, creating seamless indoor-outdoor living. With 3 or 4 bedrooms, the main floor offers two en-suite bedrooms + a custom office, while upstairs, a spacious sitting room with a breakfast bar leads to the primary suite, complete with dual closets and a private balcony overlooking the heated pool and lush backyard.Designed for relaxation and entertaining, the large covered back porch offers serene views of the tropical landscaping and tranquil pool waterfall. A gazebo-style outdoor living space expands your backyard retreat and could easily convert back into a guest cottage as it once was.A rolling front gate, off-street parking, and a charming front porch perfect for people-watching complete this exceptional property.

Overview

Property Status
Active Under Contract
Lot Size
5,025 Sq.Ft.
MLS ID
614012
Property Type
Residential
Year Built
1933

Features & Amenities

Total Area
2,438 Sq.Ft.
Neighborhood
Old Town
Water Frontage
None
View Description
No Waterview
Stories
2
Utilites
FKAA, Propane, Buyer to Verify, Municipal Sewer
Pool
In Ground, Concrete
Roof
Metal Roof
Parking
Off Street Parking
Heat Type
Central
Air Conditioning
Central Air
Other Interior Features
Wet Bar, Built-in Cabinets, Walk-in Closet(s), Other, Sliding Glass Doors
HOA Amenities
None
Security Features
Electric Gate
Other Exterior Features
Fencing, Sprinkler System, Lanai, Lighting, Gazebo
Sales Price
$3,599,000
Real Estate Tax
$23,137/yr
Zoning
HDR - High Density Residential

Downloads

1020 Southard Street

Schedule a Tour

We would love to help you see this beautiful home! As a full-service brokerage, we can help you tour. Please submit an offer, and answer questions about the buying process.

Enter a valid email

Thank you

for your interest in 1020 Southard Street, Key West, FL 33040

back to page
1020 Southard Street
Navigate
Old Town

Explore Old Town

read more
1020 Southard Street
explore in 3d

Mortgage Calculator

Estimate your monthly mortgage payment, including the principal and interest, property taxes, and HOA. Adjust the values to generate a more accurate rate.
$0,000 Your Payment 20 15 65
$0,000 Your Payment

I'm Interested In

1020 Southard Street

or
  • CallTerri Spottswood

    License #BK161619

    (305) 587-3407
  • Follow Us On Instagram