Leave a Message

Thank you for your message. We will be in touch with you shortly.

Explore Our Properties

Property Description

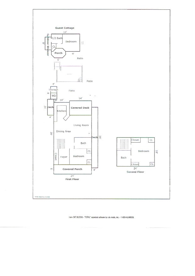
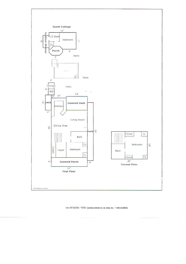
Experience elegant island living in this pristine home located on a quiet lane in the heart of Old Town Key West. This beautifully designed residence offers the perfect blend of timeless charm and modern luxury.Step inside the 3 bedroom, 2.5 bath main home where sophisticated finishes comfortable living spaces, and abundant natural light create an inviting atmosphere. The open layout flows effortlessly to the private outdoor retreat featuring a glistening pool, lush tropical landscaping and multiple relaxation areas - ideal for quiet mornings or entertaining guests.A standout feature of this property is the separate guest house, offering exceptional privacy and flexibility for visiting friends, and family. Thoughtfully appointed, it mirrors the elegance and comfort of the main residence.This is an opportunity to own an effortlessly luxurious and fully comfortable sanctuary in one of Key West' most desirable neighborhoods.Highlights Prime Old town location3 bedrooms/2.5 bathsSeparate guest house for added versatilitySpacious primary bedroomHeated pool with built in spaNew appliancesNew privacy fenced gardenMature plantingsOutdoor lighting and irrigation systemsMaintenance free decking and bluestone patio

Overview

Property Status
For Sale
Lot Size
3,124 Sq.Ft.
MLS ID
617529
Property Type
Residential
Year Built
1930

Features & Amenities

Total Area
1,432 Sq.Ft.
Neighborhood
Old Town
Water Frontage
None
View Description
No Waterview
Stories
2
Utilites
FKAA, Municipal Sewer
Pool
In Ground, Concrete
Roof
Metal Roof
Heat Type
Central, Ductless
Air Conditioning
Central Air, Ductless, Ceiling Fans(s)
Appliances
Washer, Stainless Steel Appliance(s), Gas Appliances, Disposal, Microwave, Oven, Range, Refrigerator, Dishwasher, Dryer
Other Interior Features
Cathedral Ceilings, Quartz Countertops, Storage, Dade County Pine, Built-in Cabinets, Entrance Foyer, Panel, Double Hung Windows, Other Windows/Doors, Wood Windows, Glass Doors
Disability Features
Wheelchair Ramp
HOA Amenities
None
Other Exterior Features
Fencing, Storage, Sprinkler System, Shed, Privacy Wall/Fence, Outdoor Shower, Lighting, Detached Guest Qtrs
Sales Price
$2,850,000
Real Estate Tax
$9,733/yr
Zoning
HMDR - Historic Medium Density Residential

Downloads

1108 Curry Lane

Schedule a Tour

We would love to help you see this beautiful home! As a full-service brokerage, we can help you tour. Please submit an offer, and answer questions about the buying process.

Enter a valid email

Thank you

for your interest in 1108 Curry Lane, Key West, FL 33040

back to page

Property Description

Experience elegant island living in this pristine home located on a quiet lane in the heart of Old Town Key West. This beautifully designed residence offers the perfect blend of timeless charm and modern luxury.Step inside the 3 bedroom, 2.5 bath main home where sophisticated finishes comfortable living spaces, and abundant natural light create an inviting atmosphere. The open layout flows effortlessly to the private outdoor retreat featuring a glistening pool, lush tropical landscaping and multiple relaxation areas - ideal for quiet mornings or entertaining guests.A standout feature of this property is the separate guest house, offering exceptional privacy and flexibility for visiting friends, and family. Thoughtfully appointed, it mirrors the elegance and comfort of the main residence.This is an opportunity to own an effortlessly luxurious and fully comfortable sanctuary in one of Key West' most desirable neighborhoods.Highlights Prime Old town location3 bedrooms/2.5 bathsSeparate guest house for added versatilitySpacious primary bedroomHeated pool with built in spaNew appliancesNew privacy fenced gardenMature plantingsOutdoor lighting and irrigation systemsMaintenance free decking and bluestone patio

Overview

Property Status
For Sale
Lot Size
3,124 Sq.Ft.
MLS ID
617529
Property Type
Residential
Year Built
1930

Features & Amenities

Total Area
1,432 Sq.Ft.
Neighborhood
Old Town
Water Frontage
None
View Description
No Waterview
Stories
2
Utilites
FKAA, Municipal Sewer
Pool
In Ground, Concrete
Roof
Metal Roof
Heat Type
Central, Ductless
Air Conditioning
Central Air, Ductless, Ceiling Fans(s)
Appliances
Washer, Stainless Steel Appliance(s), Gas Appliances, Disposal, Microwave, Oven, Range, Refrigerator, Dishwasher, Dryer
Other Interior Features
Cathedral Ceilings, Quartz Countertops, Storage, Dade County Pine, Built-in Cabinets, Entrance Foyer, Panel, Double Hung Windows, Other Windows/Doors, Wood Windows, Glass Doors
Disability Features
Wheelchair Ramp
HOA Amenities
None
Other Exterior Features
Fencing, Storage, Sprinkler System, Shed, Privacy Wall/Fence, Outdoor Shower, Lighting, Detached Guest Qtrs
Sales Price
$2,850,000
Real Estate Tax
$9,733/yr
Zoning
HMDR - Historic Medium Density Residential

Downloads

1108 Curry Lane

Schedule a Tour

We would love to help you see this beautiful home! As a full-service brokerage, we can help you tour. Please submit an offer, and answer questions about the buying process.

Enter a valid email

Thank you

for your interest in 1108 Curry Lane, Key West, FL 33040

back to page
1108 Curry Lane
Navigate
Old Town

Explore Old Town

read more

Mortgage Calculator

Estimate your monthly mortgage payment, including the principal and interest, property taxes, and HOA. Adjust the values to generate a more accurate rate.
$0,000 Your Payment 20 15 65
$0,000 Your Payment

I'm Interested In

1108 Curry Lane

or
  • CallMitzi Krabill

    License #BK402460

    (305) 304-2629
  • Follow Us On Instagram