Leave a Message

Thank you for your message. We will be in touch with you shortly.

Explore Our Properties

Property Description

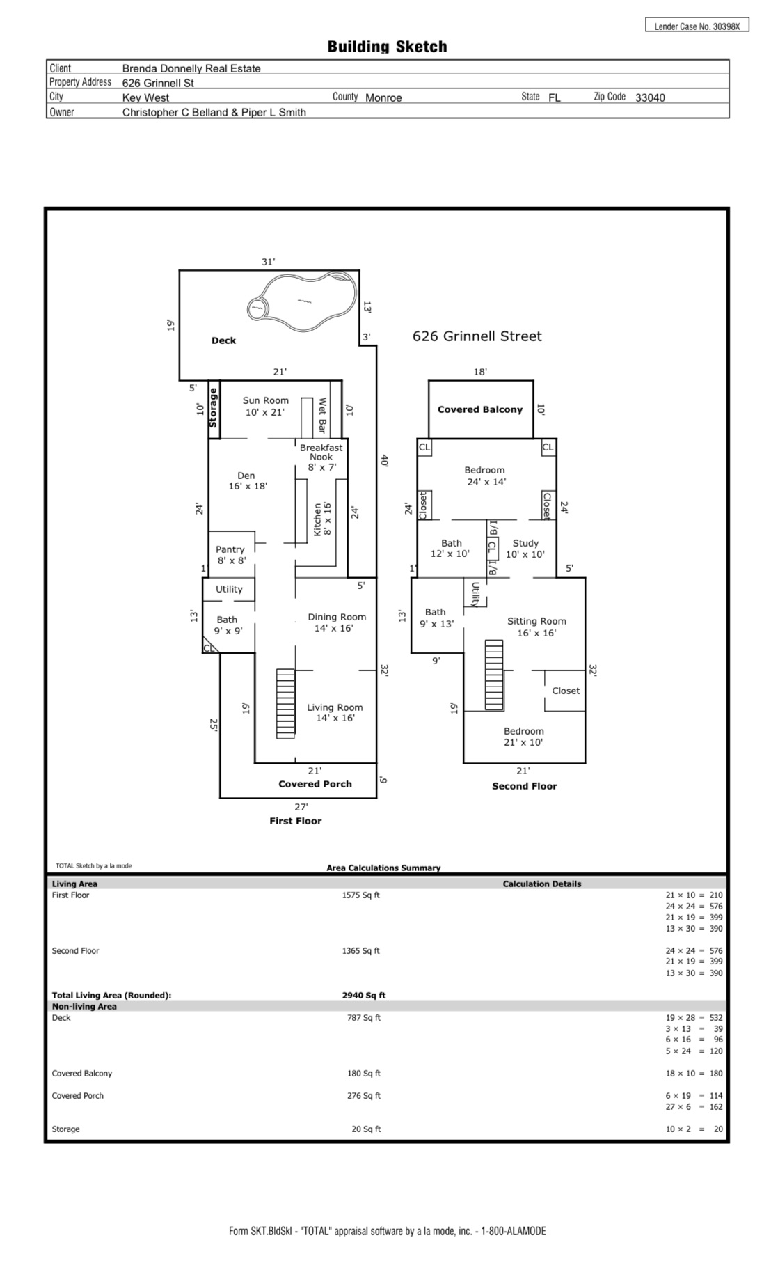
Tucked away in the coveted flood X zone of Old Town, the elegant William H. Malone House offers an exceptional blend of historic character and refined modern living. This expansive 2,940 square foot residence features exquisite architectural details, off-street parking for two, a heated spa, pool, whole home generator, and spacious covered porches--offering a tranquil private retreat mere moments from the lively heart of Old Town. The interior layout features a high-end chef's kitchen, living room, formal dining room, library/den, sunroom with bar, upstairs sitting room, and a large walk-in pantry. This flexible floor plan allows for easy conversion to a 3BR/3BA if additional bedrooms are desired. Meticulously restored, this home has been honored with the Historic Preservation Medallion and Certificate of Excellence. With Five Brothers, fine dining, local boutiques, and live music just a short walk or bike ride away, this home captures the very best of Key West island living. Note: One of the owners is a FL licensed Real Estate Broker

Overview

Property Status
Sold
Lot Size
3,456 Sq.Ft.
MLS ID
617768
Property Type
Residential
Year Built
1908

Features & Amenities

Total Area
2,940 Sq.Ft.
Neighborhood
Old Town
Water Frontage
None
View Description
No Waterview
Stories
2
Utilites
FKAA, Propane, Cable Available, Whole House Generatr, Municipal Sewer
Pool
In Ground, Decked, Concrete
Roof
Metal Roof
Parking
Off Street Parking
Air Conditioning
Central Air, Ductless, Ceiling Fans(s)
Appliances
Washer, Stainless Steel Appliance(s), Wine Cooler, Ice Machine, Gas Appliances, Freezer, Disposal, Microwave, Oven, Range, Refrigerator, Dishwasher, Dryer
Other Interior Features
Pantry, Window Treatments, Bar, Built-in Cabinets, Walk-in Closet(s), Storage, Smoke Alarms, Sky Light(s), Security System, Dade County Pine, Granite Counter Top, Cable, Surround Sound, Accordion, Other, Sun/Florida Room, Other, Sliding Glass Doors, Impact Rstnce Window, Impact Rstnce Doors, Other Windows/Doors, Wood Windows
Disability Features
None
HOA Amenities
None
Security Features
On Premises System, Central Station Sys
Other Exterior Features
Fencing, Water Display, Sprinkler System, Privacy Wall/Fence, Lighting, Rain Gutters, Fruit Tree(s)
School District
No
Sales Price
$2,675,000
Real Estate Tax
$11,907/yr
Zoning
HHDR - Historic High Density Residential

Downloads

626 Grinnell Street

Schedule a Tour

We would love to help you see this beautiful home! As a full-service brokerage, we can help you tour. Please submit an offer, and answer questions about the buying process.

Thank you

for your interest in 626 Grinnell Street, Key West, FL 33040

Property Description

Tucked away in the coveted flood X zone of Old Town, the elegant William H. Malone House offers an exceptional blend of historic character and refined modern living. This expansive 2,940 square foot residence features exquisite architectural details, off-street parking for two, a heated spa, pool, whole home generator, and spacious covered porches--offering a tranquil private retreat mere moments from the lively heart of Old Town. The interior layout features a high-end chef's kitchen, living room, formal dining room, library/den, sunroom with bar, upstairs sitting room, and a large walk-in pantry. This flexible floor plan allows for easy conversion to a 3BR/3BA if additional bedrooms are desired. Meticulously restored, this home has been honored with the Historic Preservation Medallion and Certificate of Excellence. With Five Brothers, fine dining, local boutiques, and live music just a short walk or bike ride away, this home captures the very best of Key West island living. Note: One of the owners is a FL licensed Real Estate Broker

Overview

Property Status
Sold
Lot Size
3,456 Sq.Ft.
MLS ID
617768
Property Type
Residential
Year Built
1908

Features & Amenities

Total Area
2,940 Sq.Ft.
Neighborhood
Old Town
Water Frontage
None
View Description
No Waterview
Stories
2
Utilites
FKAA, Propane, Cable Available, Whole House Generatr, Municipal Sewer
Pool
In Ground, Decked, Concrete
Roof
Metal Roof
Parking
Off Street Parking
Air Conditioning
Central Air, Ductless, Ceiling Fans(s)
Appliances
Washer, Stainless Steel Appliance(s), Wine Cooler, Ice Machine, Gas Appliances, Freezer, Disposal, Microwave, Oven, Range, Refrigerator, Dishwasher, Dryer
Other Interior Features
Pantry, Window Treatments, Bar, Built-in Cabinets, Walk-in Closet(s), Storage, Smoke Alarms, Sky Light(s), Security System, Dade County Pine, Granite Counter Top, Cable, Surround Sound, Accordion, Other, Sun/Florida Room, Other, Sliding Glass Doors, Impact Rstnce Window, Impact Rstnce Doors, Other Windows/Doors, Wood Windows
Disability Features
None
HOA Amenities
None
Security Features
On Premises System, Central Station Sys
Other Exterior Features
Fencing, Water Display, Sprinkler System, Privacy Wall/Fence, Lighting, Rain Gutters, Fruit Tree(s)
School District
No
Sales Price
$2,675,000
Real Estate Tax
$11,907/yr
Zoning
HHDR - Historic High Density Residential

Downloads

626 Grinnell Street

Schedule a Tour

We would love to help you see this beautiful home! As a full-service brokerage, we can help you tour. Please submit an offer, and answer questions about the buying process.

Thank you

for your interest in 626 Grinnell Street, Key West, FL 33040

626 Grinnell Street
Navigate
Old Town

Explore Old Town

read more

I'm Interested In

626 Grinnell Street

or
  • CallTed Stewart

    License #SL3548861

    (305) 399-0330
  • Follow Us On Instagram